Top Konsep Ukuran Pondasi Batu Kali Rumah 2 Lantai, Inspirasi Terkini!
November 06, 2021
Top Konsep Ukuran Pondasi Batu Kali Rumah 2 Lantai, Inspirasi Terkini!- a. Kegiatan pekerjaan pasangan pondasi batu kali dilaksanakan pada pekerjaan struktur dinding bata dalam bangunan, bak-bak bunga dan lain-lain sesuai gambar rencana. b. Bahanbahan yang dimanfaatkan : 1. Batu kali dan pasir, untuk keras dan kekar serta bermutu kwartsa RKS Rumah Tinggal 2 Lantai.

Ukuran Pondasi Batu Kali Rumah 2 Lantai Berbagai Ukuran Sumber : berbagaiukuran.blogspot.com

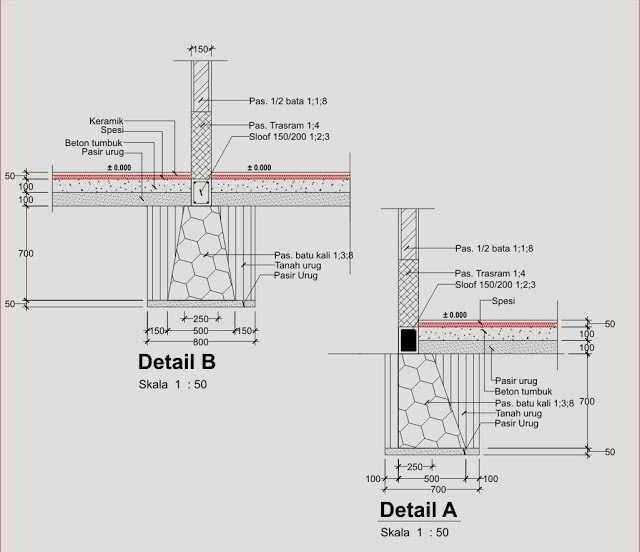
DETAIL PONDASI BATU KALI BATU GUNUNG Jurnal Arsitektur Sumber : jurnalarsitek.blogspot.com

Macam Pondasi Untuk Pemasangan Panel Beton Lantai Sumber : panelbetonmalang.blogspot.com

Merubah pondasi rumah sederhana menjadi pondasi rumah Sumber : rumah-rangka-baja.blogspot.com

Fungsi Jenis Pondasi Dalam Konstruksi Bangunan Sumber : duniatekniksipil76.blogspot.com

Ukuran Pondasi Tapak Untuk Rumah 2 Lantai Content Sumber : content.co.id

Pondasi Rumah 2 Lantai Desain Gambar Foto Tipe Rumah Sumber : www.panduanrumah.com

Pondasi Rumah 2 Lantai Desain Gambar Foto Tipe Rumah Sumber : www.panduanrumah.com

Arc Inspirasi JENIS JENIS PONDASI Sumber : b4nd1t30.blogspot.com

Pondasi Rumah 2 Lantai Desain Gambar Foto Tipe Rumah Sumber : www.panduanrumah.com

Ukuran Pondasi Batu Kali Rumah 1 Lantai Berbagai Ukuran Sumber : berbagaiukuran.blogspot.com

Kedalaman Pondasi Batu Kali Rumah 2 Lantai Info Terkait Sumber : terkaitrumah.blogspot.com

Merubah pondasi rumah sederhana menjadi pondasi rumah Sumber : rumah-rangka-baja.blogspot.com

10 Denah Pondasi Rumah Minimalis Berbagai Tipe 1 dan 2 Sumber : www.99.co

Pondasi Batu Kali Arsindo Com Sumber : www.arsindo.com
perhitungan pondasi rumah 2 lantai, kombinasi pondasi batu kali dan footplat, pondasi rumah 2 lantai tanpa batu kali, ukuran pondasi batu kali rumah 1 lantai, detail pondasi rumah 2 lantai, biaya pondasi cakar ayam rumah 2 lantai, pondasi rumah 2 lantai minimalis, pondasi rumah 2 lantai murah,
Ukuran Pondasi Batu Kali Rumah 2 Lantai
Ukuran Pondasi Batu Kali Rumah 2 Lantai Berbagai Ukuran Sumber : berbagaiukuran.blogspot.com
Ukuran Besi Untuk Pondasi Rumah 2 Lantai Content
20 11 2022 Penggunaan pondasi batu kali sebagai pondasi kediaman 2 lantai biasanya membutuhkan kedalamannya sekitar 60 80 dengan lebar tapak sama dengan tingginya Bahan bahan yang dimanfaatkan meliputi batu kali pasir pasang dan semen

DETAIL PONDASI BATU KALI BATU GUNUNG Jurnal Arsitektur Sumber : jurnalarsitek.blogspot.com
PONDASI untuk BANGUNAN LANTAI 2 arsitek

Macam Pondasi Untuk Pemasangan Panel Beton Lantai Sumber : panelbetonmalang.blogspot.com
Pondasi Rumah 2 Lantai Batu Kali Foot Plat Menerus Dll

Merubah pondasi rumah sederhana menjadi pondasi rumah Sumber : rumah-rangka-baja.blogspot.com
Ukuran Pondasi Batu Kali Rumah 2 Lantai Content
26 08 2022 Jenis jenis pondasi permukiman 2 lantai Dimensi sloof untuk permukiman 2 lantai memerlukan ukuran lebar 20cm dan tinggi 30cm dengan besi beton utama 8 buah diameter 12mm dan begel diameter 8mm jarak 10 cm Ukuran besi hunian 2 lantai yang ideal biasanya dengan bentang kolom standar jarak antara 3 sampai 4 meter

Fungsi Jenis Pondasi Dalam Konstruksi Bangunan Sumber : duniatekniksipil76.blogspot.com
Ukuran Besi Pondasi Rumah 2 Lantai Info Panduan
02 10 2022 Rumah ukuran 10 12 permukiman rencana 1 lantai dan terdapat sebagian di dak untuk rencana dibuat 2 lantai masbro untuk ukuran sloof pondasi tapak tanpa batu kali itu brp ya dan memakai besi ukuran brp ya Desain hunian 2 lantai pondasi letak tinggal 2 lantai luar biasa berbeda dengan pondasi letak tinggal 1 lantai oleh sebab itu beban yang ditahan juga jauh lebih berat pondasi kawasan tinggal walaupun tidak terlihat tetapi

Ukuran Pondasi Tapak Untuk Rumah 2 Lantai Content Sumber : content.co.id
Ukuran Pondasi Footplate Rumah 2 Lantai Content

Pondasi Rumah 2 Lantai Desain Gambar Foto Tipe Rumah Sumber : www.panduanrumah.com
Ukuran Pondasi Tapak Rumah 2 Lantai Content
03 06 2022 Penggunaan pondasi batu kali sebagai pondasi kediaman 2 lantai biasanya membutuhkan kedalamannya sekitar 60 80 dengan lebar tapak sama dengan tingginya Bahan bahan yang difungsikan meliputi batu kali pasir pasang dan semen

Pondasi Rumah 2 Lantai Desain Gambar Foto Tipe Rumah Sumber : www.panduanrumah.com
Ukuran Pondasi Telapak Untuk Rumah 2 Lantai Content
22 09 2022 Ukuran pondasi footplate permukiman 2 lantai Selain itu untuk menjaga tembok tetap kokoh saat pondasi longsor Disinilah tugas seorang teknik sipil untuk merencanakan struktur permukiman Rumah dua lantai membutuhkan konstruksi cakar ayam agar kediaman lebih kuat Pondasi menerus batu kali atau batu bata pada pondasi hunian 2 lantai biasanya tidak dapat berdiri sendiri tanpa pondasi telapak footplate

Arc Inspirasi JENIS JENIS PONDASI Sumber : b4nd1t30.blogspot.com

Pondasi Rumah 2 Lantai Desain Gambar Foto Tipe Rumah Sumber : www.panduanrumah.com

Ukuran Pondasi Batu Kali Rumah 1 Lantai Berbagai Ukuran Sumber : berbagaiukuran.blogspot.com
Kedalaman Pondasi Batu Kali Rumah 2 Lantai Info Terkait Sumber : terkaitrumah.blogspot.com

Merubah pondasi rumah sederhana menjadi pondasi rumah Sumber : rumah-rangka-baja.blogspot.com

10 Denah Pondasi Rumah Minimalis Berbagai Tipe 1 dan 2 Sumber : www.99.co
Pondasi Batu Kali Arsindo Com Sumber : www.arsindo.com